Choose the perfect layout!

Liberty Communities offers a diverse collection of floor plans designed to fit every lifestyle and preference.

Your Home, Your Way: diverse Layouts for Every Budget

Finding a home within your budget shouldn't mean limiting your choices. Whether you need a dedicated home office, a spacious kitchen for entertaining, or a cozy retreat, our diverse range of floor plans allows you to prioritize what matters most. Explore our attainable options and find the backdrop for your next chapter.

Most floorplans are available in all Liberty Communities! Talk with the site leader for more information!


The Lincoln

Bedrooms: 2

Bathrooms: 2

Stories: 1

Square Footage: 1126

Available plans: Lincoln GS, Lincoln Storage & Lincoln 3 Car Garage. All options with left or right garage swing.

Liberty Communities Lincoln Floor plan

Liberty Communities Bell

The Bell

Bedrooms: 3

Bathroom: 2

Stories: 1

Square Feet: 1234

Available plans: Bell GS, Bell Storage & Bell 3 Car Garage. All options with left or right garage swing.


The Rushmore

Bedrooms: 3

Bathrooms: 2

Stories: 1

Square Footage: 1388

Available Options: Rushmore Storage & Rushmore 3 Car Garage. All options with left or right garage swing.

Liberty Communities Rushmore Storage Floor plan

Liberty Communities Independence

The Independence

Bedrooms: 3

Bathrooms: 2

Stories: 1

Square footage: 1501

Available options: Independece GS, Independence Storage & Independence 3 Car Garage


The Hamilton

Bedrooms: 3

Bathrooms: 2

Stories: 1

Square footage: 1555

Available options: Hamilton Storage & Hamilton 3 Car Garage. All options with left or right garage swing.

Liberty Communities Hamilton

Liberty Communities Georgetown

The Georgetown

Bedrooms: 4

Bathrooms: 2

Stories: 1

Square Footage: 1601

Available options: Georgetown GS, Georgetown Storage & Georgetown 3 Car Garage. All options with left or right garage swing.



The Revere

Bedrooms: 4

Bathrooms: 2

Stories: 1

Square Footage: 1622

Available opions: Revere & Revere Storage. All options with left or right garage swing.

Liberty Communities Revere Floor plan

Liberty Communities Cleveland

The Cleveland

Bedrooms: 4

Bathrooms: 2

Stories: 1

Square Footage: 1683

Available opions: Cleveland GS, Cleveland Storage & Cleveland 3 Car Garage. All options with left or right garage swing.


The Franklin

Bedrooms: 4

Bathrooms: 2

Stories: 1

Square Footage: 1804

Available opions: Franklin GS, Franklin Storage & Franklin 3 Car Garage. All options with left or right garage swing.

Liberty Communities Franklin

Liberty Communities President GS Floor plan

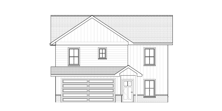
The President

Bedrooms: 4

Bathrooms: 3

Stories: 2

Square Footage: 1803

Available opions: President GS, President Storage & President 3 Car Garage. All options with left or right garage swing.


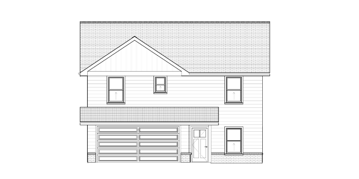
The Washington

Bedrooms: 5

Bathrooms: 3

Stories: 2

Square Footage: 1803

Available opions: Washington GS, Washington Storage & Washington 3 Car Garage. All options with left or right garage swing.

Liberty Communities Washington

Liberty Communities Liberty

The Liberty

Bedrooms: 5

Bathrooms: 3

Stories: 2

Square Footage: 2208

Available opions: Liberty GS, Liberty Storage & Liberty 3 Car Garage. All options with left or right garage swing.

Liberty Communities Kansas

Meet Your Builders: Liberty Communities

Liberty Communities is a residential home builder based in Wichita, Kansas, dedicated to developing attainable new homes in thoughtfully designed neighborhoods across the Central Kansas region. Distinct from large national conglomerates, they position themselves as a community-focused builder that prioritizes local needs, operating in areas such as Wichita, Goddard, Andover, Maize, and Derby.

Their mission centers on the philosophy that "We build houses, and you make it home." They strive to remove the barriers to homeownership by offering:

  • Affordability & Quality: Providing well-constructed homes that balance modern style with accessible pricing.

  • Guidance: Acting as a partner rather than just a seller, they focus on educating buyers and navigating them through the often overwhelming home-buying journey.

  • Lasting Value: A commitment to "quality, comfort, and lasting value," ensuring homes are built with care and backed by structural warranties.

Liberty Comunities are known for open-concept floor plans (such as their flagship "The Liberty" plan) and including premium features as standards—like granite countertops, low-maintenance flooring, and smart-home pre-wiring—rather than expensive upgrades.