The Liberty

The Signature Spirit of Our Community

A home so perfect, we put our name on it.

Welcome to the Liberty, the flagship floor plan that embodies the very best of what we build. Designed to capture the essence of the American Dream, this home offers the perfect fusion of style, space, and affordability. It is the definitive choice for families who want it all.

The Liberty plan is all about removing barriers. With a sweeping open-concept layout, sun-drenched living areas, and a design that prioritizes your lifestyle, this home gives you the room to breathe and the freedom to grow. Experience the quality and commitment of Liberty Communities in its purest form.

The Liberty at a Glance:

  • Square Footage: 2208

  • Bedrooms: 5

  • Bathrooms: 3

  • Stories: 2

  • Garage: 2 or 3 Car

  • Available Options: Liberty GS, Liberty Storage & Liberty 3 Car Garage

The Liberty GS plan

Liberty Communities Kansas Liberty GS
Liberty Communities Kansas Liberty GS
Liberty Communities Kansas Liberty GS
Liberty Communities Kansas Liberty GS
Liberty Communities Kansas Liberty GS

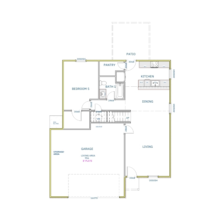
The Liberty Storage plan

Liberty Communities Liberty Storage Floor plan
Liberty Communities Liberty Storage Floor plan
Liberty Communities Liberty Storage Floor plan
Liberty Communities Liberty Storage Floor plan
Liberty Communities Liberty Storage Floor plan

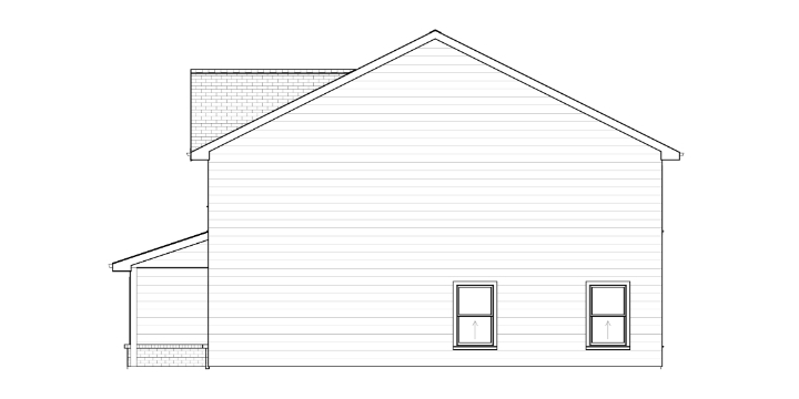
The Liberty 3 Car Garage plan

Liberty Communities Liberty 3 Car Garage Floor plan
Liberty Communities Liberty 3 Car Garage Floor plan
Liberty Communities Liberty 3 Car Garage Floor plan
Liberty Communities Liberty 3 Car Garage Floor plan
Liberty Communities Liberty 3 Car Garage Floor plan