The Washington

A Founding Standard of Excellence

First in comfort, first in value, and first in the hearts of our homeowners.

Establish your legacy with the Washington, a floor plan that sets the bar for modern family living. Just as its namesake laid the foundation for our country, this home provides the solid, reliable foundation your family needs to thrive.

The Washington combines traditional values with contemporary design. featuring a layout that is open, honest, and incredibly functional. With spacious gathering areas and a flow that encourages connection, it is the perfect setting for creating your own history. "I cannot tell a lie"—this might just be the perfect home for you.

The Washington at a Glance:

  • Square Footage: 1803

  • Bedrooms: 5

  • Bathrooms: 3

  • Stories: 2

  • Garage: 2 or 3 Car

  • Available Options: Washintgon GS, Washington Storage & Washington 3 Car Garage

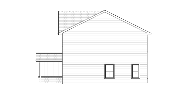
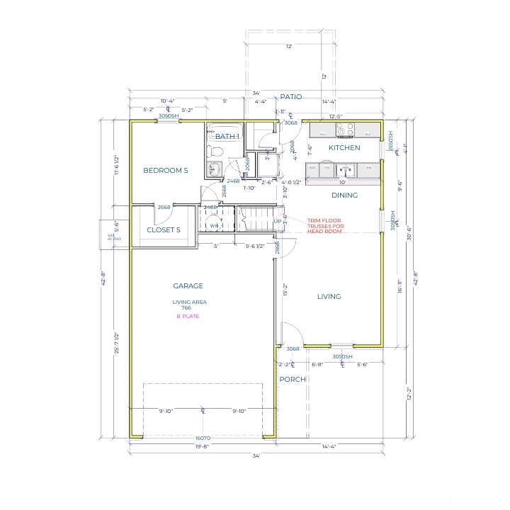
The Washington GS plan

Liberty Communities Kansas Washington GS
Liberty Communities Kansas Washington GS
Liberty Communities Kansas Washington GS
Liberty Communities Kansas Washington GS
Liberty Communities Kansas Washington GS

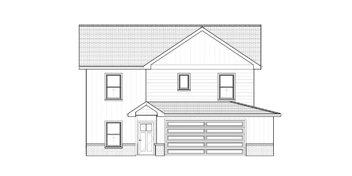
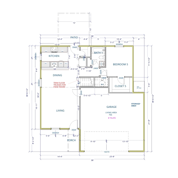
The Washington Storage plan

Liberty Communities Washington Storage Floor plan
Liberty Communities Washington Storage Floor plan
Liberty Communities Washington Storage Floor plan
Liberty Communities Washington Storage Floor plan
Liberty Communities Washington Storage Floor plan

The Washington 3 Car Garage plan

Liberty Communities Washington 3 Car Garage Floor plan
Liberty Communities Washington 3 Car Garage Floor plan
Liberty Communities Washington 3 Car Garage Floor plan
Liberty Communities Washington 3 Car Garage Floor plan
Liberty Communities Washington 3 Car Garage Floor plan