The Revere

A Revolutionary Approach to Comfort

Ready for your arrival. Built for your future.

Announce your arrival with the Revere, a floor plan that stands as a testament to quality craftsmanship and smart design. Just as its namesake is known for action and reliability, this home is built to handle the hustle and bustle of modern family life with ease.

The Revere features a dynamic open layout that keeps you connected, whether you are preparing a meal in the kitchen or relaxing in the great room. With distinctive architectural details and a flow that makes sense, it’s a home that invites you to settle in and stay a while.

The Revere at a Glance:

  • Square Footage: 1622

  • Bedrooms: 4

  • Bathrooms: 2

  • Stories: 1

  • Garage: 2 or 3 Car

  • Available Options: Revere & Revere Storage

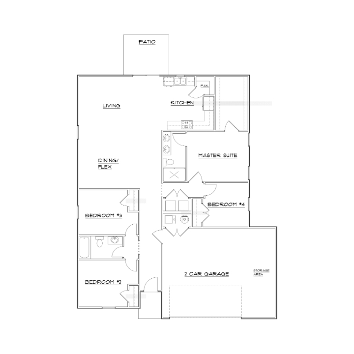
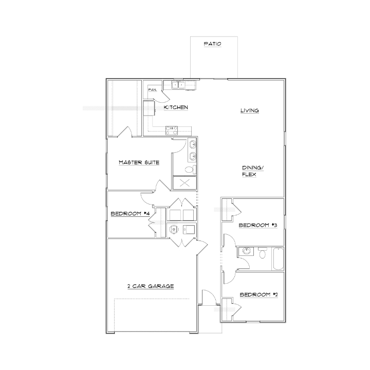
The Revere plan

Liberty Communities Kansas Revere

Revere

Liberty Communities Kansas Revere Storage

Revere Storage

Revere Elevation Options

Liberty Communities Kansas Revere
Liberty Communities Kansas Revere
Liberty Communities Kansas Revere
Liberty Communities Kansas Revere