The President

Live Like a Leader

A floor plan that commands attention and delivers comfort.

Take charge of your future with the President, a home designed for those who appreciate a higher standard of living. As the name suggests, this floor plan leads the way in style, functionality, and family-focused design.

Whether you are holding a family meeting at the dinner table or enjoying some executive downtime in the living room, the President offers a layout that balances impressive open spaces with cozy, private corners. It’s a home built for decision-makers who refuse to compromise on quality or value. Welcome to your new headquarters.

The President at a Glance:

  • Square Footage: 1803

  • Bedrooms: 4

  • Bathrooms: 3

  • Stories: 2

  • Garage: 2 or 3 Car

  • Available Options: President GS, President Storage & President 3 Car Garage

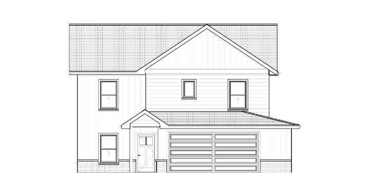
The President GS plan

Liberty Communities Kansas President GS
Liberty Communities Kansas President GS
Liberty Communities Kansas President GS
Liberty Communities Kansas President GS
Liberty Communities Kansas President GS

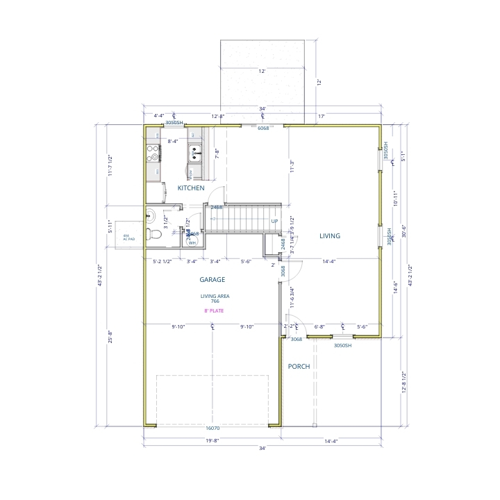
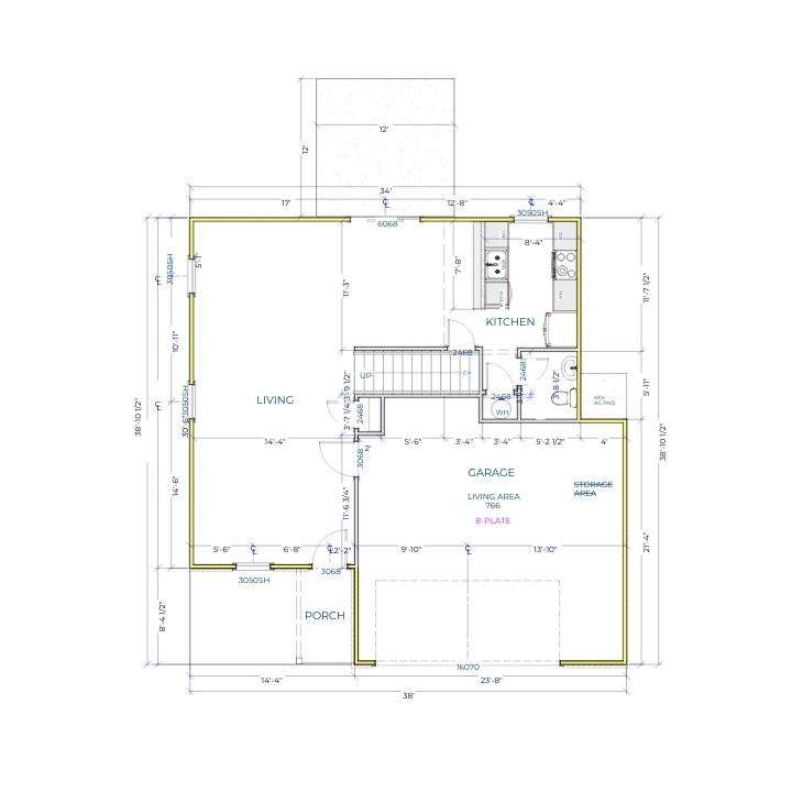
The President Storage plan

Liberty Communities President Storage Floor plan
Liberty Communities President Storage Floor plan
Liberty Communities President Storage Floor plan
Liberty Communities President Storage Floor plan
Liberty Communities President Storage Floor plan

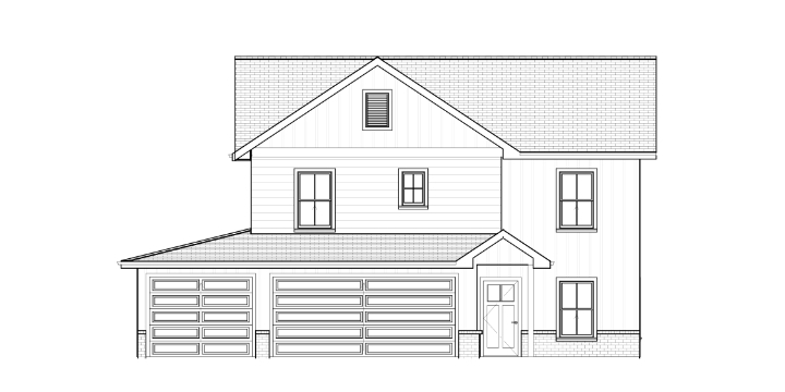
The President 3 Car Garage plan

Liberty Communities President 3 Car Garage Floor plan
Liberty Communities president 3 Car Garage Floor plan
Liberty Communities president 3 Car Garage Floor plan
Liberty Communities president 3 Car Garage Floor plan
Liberty Communities president 3 Car Car Garage Floor plan